Водолазам Київської станції порятунку не змогли купити модульний будинок за 10 млн гривень

Водолазам Київської станції порятунку не змогли купити модульний будинок за 10 млн гривень

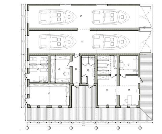
КАРС “Київська служба порятунку” планувала замовити та встановити на вул. Прирічній модульний будинок з двома елінгами. На закупівлю виділили понад 10 млн гривень та торги було автоматично відмінено.

Про це, як передає КВ, йдеться у повідомленні в електронній системі публічних закупівель Prozorro.

Комунальна аварійно-рятувальна служба “Київська служба порятунку” оголосила тендер з пошуку постачальника модульного будинку, виділивши на закупівлю 10 млн 800 тис. гривень.

Як з’ясувала “КиївВлада”, місце розташування споруди: вул. Прирічна в Оболонському районі. Будинок повинен мати:

  • Елінги (2 одиниці): ширина – 4 м, висота – 4 м.
  • Приміщення: ширина – згідно плану, висота 3.8 м.
  • Утеплення: Базальтова вата товщиною 200 мм, щільністю 45 кг/м³.
  • Загальна площа споруди – 284 м. кв.

Споруда збирається із заздалегідь виготовлених модулів, які доставляються до місця розташування і монтуються на місці. Модулі виготовляються каркасним методом в основі якого лежить дерев’яний каркас.

Водолазам Київської станції порятунку не змогли купити модульний будинок за 10 млн гривень

Торги не відбулися у зв’язку з автоматичною відміною.

Що закупила місцева влада Києва і області та державні установи у листопаді, дивіться у відео КВ:

Читайте: Справи насущні: скільки та на що у жовтні 2025-го витрачав Київ

Фото: Візуалізація з додатку 2 до тендерної документації

КиївВлада

Олександр Попов 

Поділитися
Поділитися
Поділитися
Рекомендуємо до перегляду
Київська прокуратура судиться з компанією Фісталя за 7 соток землі на Подолі
Київська прокуратура судиться з компанією Фісталя за 7 соток землі на Подолі
09:00 Столична прокуратура в судовому порядку поки що безуспішно добивається повернення громаді міста 7 “соток” землі на вул. Кирилівській, 13-Є. На переконання правоохоронців, Київрада…
Котеджі замість ставків: Генпрокуратура намагається відібрати в Інститута НААН України землю, яку віддали під забудову компанії Молчанових
Котеджі замість ставків: Генпрокуратура намагається відібрати в Інститута НААН України землю, яку віддали під забудову компанії Молчанових
09:00 Генпрокуратура наразі намагається в судовому порядку відібрати у Інституту рибного господарства НААН України земельну ділянку площею 14,5 га на вул. Обухівській. Правоохоронці зазначають,…
Сумнівні дозволи та ризик руйнування метро: столичні правоохоронці зацікавилися планами забудови біля Льодового стадіону
Сумнівні дозволи та ризик руйнування метро: столичні правоохоронці зацікавилися планами забудови біля Льодового стадіону
09:00 Нацполіція розслідує можливі факти зловживання службовим становищем при видачі дозвільних документів на забудову понад 3,7 га землі на просп. Академіка Глушкова, 5 –…
Banner
QlU7mDx4